THI CÔNG TRỌN GÓI BIỆT THỰ HIỆN ĐẠI 2 TẦNG MÁI BẰNG A TÌNH KHOÁI CHÂU HƯNG YÊN
I.CẬP NHẬT TIẾN ĐỘ THI CÔNG TRỌN GÓI CÁC HẠNG MỤC BIỆT THỰ ANH TÌNH KHOÁI CHÂU HƯNG YÊN
Được sự tin tưởng của chủ đầu tư-anh Tình ở Khoái Châu Hưng Yên giao cho công ty Kiến trúc ECOGREEN thiết kế thi công trọn gói căn biệt thự hiện đại 2 tầng mái bằng.Khi ký hợp đồng gói Thiết kế kiến trúc-thi công trọn gói bao gồm những phần:
Miễn phí thiết kế khi ký hợp đồng thi công trọn gói.
Tư vấn Kiến trúc & Phong thủy từ Kiến trúc sư dày dặn kinh nghiệm.
Báo giá nhanh chóng, chi tiết,rõ ràng.
Hồ sơ kỹ thuật đầy đủ, dễ hiểu, dễ thi công xây dựng
Cam kết tiến độ và chất lượng công trình
Giám sát thi công đến khi hoàn thiện.
Bảo hành lâu dài bảo trì mãi mãi.
1.THÔNG TIN KHÁCH HÀNG:
|
Tên chủ đầu tư:
|
Anh TÌNH
|
|
Dự án thiết kế kiến trúc:
|
Thi công trọn gói biệt thự hiện đại 2 Tầng Mái Bằng Anh Tình Khoái Châu Hưng Yên
|
|
Vị trí:
|
Khoái Châu - Hưng Yên
|
|
Mặt bằng tầng 1
|
110m2
|
|
Mặt bằng tầng 2
|
140m2
|
|
Thi công trọn gói
|
Kiến trúc ECO GREEN
|
|
Thiết kế kiến trúc
|
Kiến trúc ECO GREEN
|
|
Công năng tầng 1:
|
Sảnh chính 1 Phòng khách , 1 phòng bếp+ phòng ăn+ 2 phòng ngủ+ 2 phòng VSinh
|
|
Công năng tầng 2
|
2 phòng ngủ ,1 sảnh hành lang,1 phòng thờ, 2 phòng vệ sinh+1 Sân chơi
|
2.MẶT BẰNG CÔNG NĂNG BIỆT THỰ HIỆN ĐẠI 2 TẦNG A TÌNH KHOÁI CHÂU HƯNG YÊN

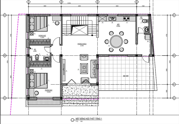
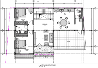
Mặt bằng tầng 1- Biệt thự hiện đại 2 tầng Khoái Châu Hưng Yên-thi công trọn gói thiết kế kiến trúc ECOGREEN

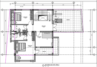
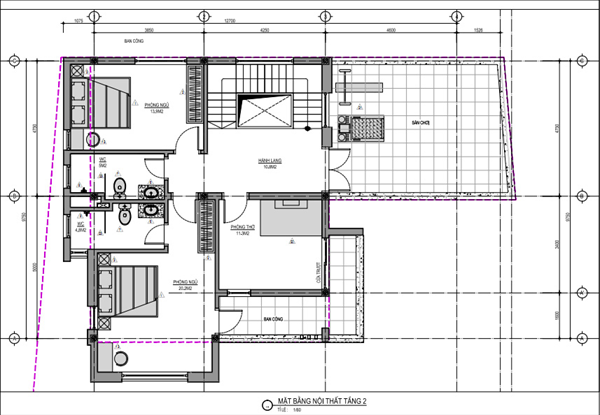
Mặt bằng tầng 2 -Biệt thự hiện đại 2 tầng Khoái Châu Hưng Yên-thi công trọn gói thiết kế kiến trúc ECOGREEN
3.TIẾN ĐỘ THI CÔNG TRỌN GÓI BIỆT THỰ 2 TẦNG A TÌNH KHOÁI CHÂU HƯNG YÊN
Cùng theo chân Eco Green theo dõi Tiến độ thi công trọn gói của căn biệt thự hiện đại 2 tầng nhà A Tình nhé.
Với công ty ECO GREEN mỗi quý độc giả cũng là 1 giám sát viên vô cùng quan trọng, mỗi lời góp ý của quý độc giả đều sẽ được chúng tôi tiếp thu lắng nghe và cùng sửa đổi.

Đan thép móng-Biệt thự hiện đại 2 tầng Khoái Châu Hưng Yên-thi công trọn gói thiết kế kiến trúc ECOGREEN

Đan thép móng xây tường bao ghép coppha Biệt thự hiện đại 2 tầng Khoái Châu Hưng Yên-thi công trọn gói thiết kế kiến trúc ECOGREEN

Xây bể nước ngầm-Biệt thự hiện đại 2 tầng Khoái Châu Hưng Yên-thi công trọn gói thiết kế kiến trúc ECOGREEN

Xây bể tự họai 3 ngăn-Biệt thự hiện đại 2 tầng Khoái Châu Hưng Yên-thi công trọn gói thiết kế kiến trúc ECOGREEN

Đan thép móng chuẩn bị công tác đổ móng-Biệt thự hiện đại 2 tầng Khoái Châu Hưng Yên-thi công trọn gói thiết kế kiến trúc ECOGREEN

Đan thép móng chuẩn bị công tác đổ móng-Biệt thự hiện đại 2 tầng Khoái Châu Hưng Yên-thi công trọn gói thiết kế kiến trúc ECOGREEN
II.PHỐI CẢNH THIẾT KẾ KIẾN TRÚC BIỆT THỰ 2 TẦNG A TÌNH KHOÁI CHÂU HƯNG YÊN
Mẫu trình BIỆT THỰ 2 TẦNG A TÌNH KHOÁI CHÂU HƯNG YÊN được thiết kế theo phong cách kiến trúc hiện đại thông qua việc sử dụng những hình khối, đường nét sắc nét, rõ ràng, mạch lạc. Trong đó, ngôi biệt thự là những hình khối vuông vắn được sắp xếp bố cục kiến trúc đầy chất nghệ thuật. Các khối nhà được phân biệt thông qua màu sắc của vật liệu ốp, sơn tường tạo nên một không gian ngoại thất năng động, hiện đại mà không kém phần sang trọng.



>>>>>>>>>>>>xem thêm kiến trúc nhà anh Tình<<<<<<<<<<<<<<<<<<<<
III.QUY TRÌNH THIẾT KẾ KIẾN TRÚC BIỆT THỰ 2 TẦNG A TÌNH KHOÁI CHÂU HƯNG YÊN
Hồ sơ thiết kế kiến trúc biệt thự 2 tầng a tình khoái châu hưng yên bao gồm:
· Bản vẽ chi tiết kiến trúc và phối cảnh ngoại thất 3D
· Bản vẽ chi tiết nội thất, phối cảnh nội thất 3D
· Bản vẽ kết cấu công trình
· Bản vẽ hệ thống ME (Điện – Nước – Điều hòa – Thông gió – An ninh…)
· Dự toán công trình: chi tiết chi phí xây dựng – Tổng mức đầu tư
· Toàn bộ hồ sơ thiết kế kiến trúc và công năng chia phòng đều được tư vấn hợp theo Phong thủy và tuổi của chủ đầu tư.
· Kích thước các phòng, chiều cao nhà và kích thước cửa đều theo kích thước phong thủy.
IV.LỜI KẾT
Các kiến trúc sư tại ECOGREEN có nhiều kinh nghiệm trong lĩnh vực thiết kế thi công nhà ở với kiến thức chuyên môn và gu thẩm mỹ nghệ thuật cao cam kết sẽ sáng tạo hết mình mang lại không gian sống lý tưởng nhất cho bạn và gia đình.
Nhờ có những đặc trưng vô cùng thú vị và độc đáo nêu trên mà thiết kế kiến trúc phong cách hiện đại đã dẫn đầu xu hướng phân khúc biệt thự hiện nay. Nếu bạn yêu thích mẫu thiết kế kiến trúc của Eco Green và có nhu cầu áp dụng phong cách này cho tổ ấm của mình, thì đừng ngần ngại mà hãy liên hệ ngay với Công ty thiết kế kiến trúc ECO GREEN-thi công trọn gói.
ECO GREEN là công ty thiết kế kiến trúc uy tín tại Hà Nội và TPHCM với nhiều năm trên thị trường bỏi đội ngũ chúng tôi đã thi công +5000 hồ sơ kiến trúc chất lượng và đã có được sự tin tưởng của nhiều khách hàng.
ĐƠN VỊ CHUYÊN NGHIỆP THIẾT KẾ THI CÔNG NỘI NGOẠI THẤT CÔNG TRÌNH
· Trụ sở: Tòa The Legend, 109 Nguyễn Tuân, Nhân Chính, Thanh Xuân, Hà Nội.
· Hotline (Zalo): 0973 971 896
· Trụ sở: Nguyễn Tuân, Nhân Chính, Thanh Xuân, Hà Nội.
· VP2: Vĩnh Cửu, Biên Hòa, Đồng Nai.
· VP3: Võ Văn Ngân, Thủ Đức, TP Hồ Chí Minh
· Website: kientruceco.com / http://kientruceco.vn /
· Email: ecohome.jsc@gmail.com
· Facebook: https://www.facebook.com/kientrucecogreen
Hiện nay, có rất nhiều phong cách thiết kế cho nhà 2 tầng hiện đại, dưới đây là 1 vài phong cách mà các KTS Eco-Green thường được yêu cầu thiết kế nhiều nhất:
Thiết kế kiến trúc nhà 2 tầng mái thái, Thi công trọn gói nhà 2 tầng mái thái
Thiết kế kiến trúc nhà vườn 2 tầng, Thi công trọn gói nhà vườn 2 tầng
Thiết kế kiến trúc nhà 2 tầng mái bằng,Thi công trọn gói nhà 2 tầng mái bằng
Thiết kế kiến trúc nhà ống 2 tầng,Thi công trọn gói nhà ống 2 tầng
Thiết kế kiến trúc nhà 2 tầng mái lệch,Thi công trọn gói nhà 2 tầng mái lệch
Thiết kế kiến trúc nhà 2 tầng kiểu Pháp,Thi công trọn gói nhà 2 tầng kiểu Pháp
Thiết kế kiến trúc nhà 2 tầng Tân cổ điển,Thi công trọn gói nhà 2 tầng Tân cổ điển
Thiết kế kiến trúc nhà biệt thự 2 tầng Hiện Đại,Thi công trọn gói nhà biệt thự 2 tầng Hiện Đại
Thiết kế kiến trúc An Giang, Thi công trọn gói tại An Giang
Thiết kế kiến trúc An Giang, Thi công trọn gói tại An Giang
Thiết kế kiến trúc Bà Rịa-Vũng Tàu, Thi công trọn gói tại Bà Rịa-Vũng Tàu
Thiết kế kiến trúc Bạc Liêu , Thi công trọn gói tại Bạc Liêu
Thiết kế kiến trúc Bắc Kạn, Thi công trọn gói tại Bắc Kạn
Thiết kế kiến trúc Bắc GiangThi công trọn gói tại Bắc Giang
Thiết kế kiến trúc Bắc Ninh, , Thi công trọn gói tại Bắc Ninh
Thiết kế kiến trúc Bến Tre, , Thi công trọn gói tại Bến Tre
Thiết kế kiến trúc Bình Dương, Thi công trọn gói tại Bình Dương
Thiết kế kiến trúc Bình Định, Thi công trọn gói tại Bình Định
Thiết kế kiến trúc Bình Phước, Thi công trọn gói tại Bình Phước
Thiết kế kiến trúc Bình Thuận, Thi công trọn gói tại Bình Thuận
Thiết kế kiến trúc Cà Mau, Thi công trọn gói tại Cà Mau
Thiết kế kiến trúc Cao Bằng, Thi công trọn gói tại Cao Bằng
Thiết kế kiến trúc Cần Thơ , Thi công trọn gói tại Cần Thơ
Thiết kế kiến trúc Đà Nẵng, Thi công trọn gói tại Đà Nẵng
Thiết kế kiến trúc Đắk Lắk, Thi công trọn gói tại Đắk Lắk
Thiết kế kiến trúc Đắk Nông, Thi công trọn gói tại Đắk Nông
Thiết kế kiến trúc Điện Biên, Thi công trọn gói tại Điện Biên
Thiết kế kiến trúc Đồng Nai, Thi công trọn gói tại Đồng Nai
Thiết kế kiến trúc Đồng Tháp, Thi công trọn gói tại Đồng Tháp
Thiết kế kiến trúc Gia Lai, Thi công trọn gói tại Gia Lai
Thiết kế kiến trúc Hà Giang, Thi công trọn gói tại Hà Giang
Thiết kế kiến trúc Hà Nam, Thi công trọn gói tại Hà Nam
Thiết kế kiến trúc Hà Nội , Thi công trọn gói tại Hà Nội
Thiết kế kiến trúc Hà Tây, Thi công trọn gói tại Hà Tây
Thiết kế kiến trúc Hà Tĩnh, Thi công trọn gói tại Hà Tĩnh
Thiết kế kiến trúc Hải Dương, Thi công trọn gói tại Hải Dương
Thiết kế kiến trúc Hải Phòng , Thi công trọn gói tại Hải Phòng
Thiết kế kiến trúc Hòa Bình, Thi công trọn gói tại Hòa Bình
Thiết kế kiến trúc TPHồ Chí Minh, Thi công trọn gói tại Hồ Chí Minh
Thiết kế kiến trúc Hậu Giang, Thi công trọn gói tại Hậu Giang
Thiết kế kiến trúc Hưng Yên, Thi công trọn gói tại Hưng Yên
Thiết kế kiến trúc Khánh Hòa, Thi công trọn gói Khánh Hòa
Thiết kế kiến trúc Kiên Giang, Thi công trọn gói tại Kiên Giang
Thiết kế kiến trúc Kon Tum, Thi công trọn gói tại Kon Tum
Thiết kế kiến trúc Lai Châu, Thi công trọn gói tại Lai Châu
Thiết kế kiến trúc Lào Cai, Thi công trọn gói tại Lào Cai
Thiết kế kiến trúc Lạng Sơn, Thi công trọn gói tại Lạng Sơn
Thiết kế kiến trúc Lâm Đồng, Thi công trọn gói tại Lâm Đồng
Thiết kế kiến trúc Long An, Thi công trọn gói tại Long An
Thiết kế kiến trúc Nam Định, Thi công trọn gói tại Nam Định
Thiết kế kiến trúc Nghệ An, Thi công trọn gói tại Nghệ An
Thiết kế kiến trúc Ninh Bình, Thi công trọn gói tại Ninh Bình
Thiết kế kiến trúc Ninh Thuận, Thi công trọn gói tại Ninh Thuận
Thiết kế kiến trúc Phú Thọ, Thi công trọn gói tại Phú Thọ
Thiết kế kiến trúc Phú Yên, Thi công trọn gói tại Phú Yên
Thiết kế kiến trúc Quảng Bình, Thi công trọn gói tại Quảng Bình
Thiết kế kiến trúc Quảng Nam, Thi công trọn gói tại Quảng Nam
Thiết kế kiến trúc Quảng Ngãi, Thi công trọn gói tại Quảng Ngãi
Thiết kế kiến trúc Quảng Ninh, Thi công trọn gói tại Quảng Ninh
Thiết kế kiến trúc Quảng Trị, Thi công trọn gói tại Quảng Trị
Thiết kế kiến trúc Sóc Trăng, Thi công trọn gói tại Sóc Trăng
Thiết kế kiến trúc Sơn La, Thi công trọn gói tại Sơn La
Thiết kế kiến trúc Tây Ninh, Thi công trọn gói tại Tây Ninh
Thiết kế kiến trúc Thái Bình, Thi công trọn gói tại Thái Bình
Thiết kế kiến trúc Thái Nguyên, Thi công trọn gói tại Thái Nguyên
Thiết kế kiến trúc Thanh Hóa, Thi công trọn gói tại Thanh Hóa
Thiết kế kiến trúc Thừa Thiên – Huế, Thi công trọn gói tại Thừa Thiên – Huế
Thiết kế kiến trúc Tiền Giang, Thi công trọn gói tại Tiền Giang
Thiết kế kiến trúc Trà Vinh, Thi công trọn gói tại Trà Vinh
Thiết kế kiến trúc Tuyên Quang, Thi công trọn gói tại Tuyên Quang
Thiết kế kiến trúc Vĩnh Long, Thi công trọn gói tại Vĩnh Long
Thiết kế kiến trúc Vĩnh Phúc, Thi công trọn gói tại Vĩnh Phúc
Thiết kế kiến trúc Yên Bái, Thi công trọn gói tại Yên Bái