THIẾT KẾ BIỆT THỰ, NHÀ LIÊN KẾ HẢI DƯƠNG, NHÀ LÔ PHỐ A ĐỨC HẢI DƯƠNG, THIẾT KẾ KIẾN TRÚC
"Phương án thiết kế nhà liền kề hải dương, nhà lô phố hải dương"
Với diện tích đất của chủ nhà như hiện trạng, mặt tiền rộng 4m và sâu vào trong nhiều, đây cũng là 1 thách thức với công ty thiết kế kiến trúc để đưa ra phương án tối ưu về cả hình thức lẫn nội dung công trình. Lấy tầng 1 làm nền cho hình khối công trình, đưa ra những mảng khối liên kết cả tuyến nhà lô theo chiều dọc tạo nên nét riêng cho công trình. Không những thế, liên kết nội bộ giữa khối của các tầng làm cho hình khối thêm phàn chặt chẽ thêm.

"Thiết kế cấu trúc bên trong nhà liên kế hải dương"
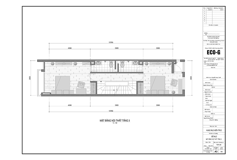
Với yêu cầu thực tiễn, nhu cầu sửu dụng hiện tại của công trình. Tầng 1 được sử dụng làm khu vực kinh doanh, tầng lửng bắt đầu của chuỗi không gian sử dụng riêng cho gia đình. Bếp, khách tầng lững, các phòng ngủ và khu vệ sinh được bố trí thiết kế các tầng trên. Đặc tính của khu đất gây ra khó khăn cho việc lấy sáng và thông khí cho các phòng ốc được sử dụng trong thiết kế nhà lô phố này. Do đó, chúng tôi với tư cách là đơn vị tư vấn thiết kế đã đưa ra phương án thiết kế cho công trình nhà lô phố này 1 trải nghiệm mới về không gian bên trong. Đó chính là lấy sáng khu vực thang xuống hành lang để lấy sáng và thông khí. Còn đối với khu vực vệ sinh, 2 khối vệ sinh nằm cạnh nhau, phương án thiết kế kiến trúc được đưa ra là sử dụng 1 khoảng không chung cho 2 khối vệ sinh đó với mục đích thông gió chính cho khối vệ sinh đó. Đây là 1 cách sử lý mặc dầu mất nhiều diện tích không gian thừa nhưng lại giúp ích cho việc thông khí của khối phụ.
"Thiết kế mặt bằng nhà liên kế hải dương"
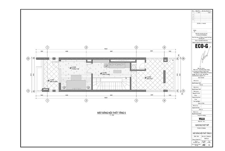
Với nhiệm vụ thiết kế theo yêu cầu của gia chủ, CÔng ty thiết kế kiến trúc đã đưa ra phương án thiết kế tối ưu cho công trình. Với phương án như dưới đây đã đáp ứng đủ các tiêu chí của gia chủ đề ra và ý tưởng thiết kế của đơn vị tư vấn thiết kế







Biệt thự đẹp
Biệt thự mái thái đẹp
Biệt thự hiện đại
Biệt thự nông thôn
Biệt thự hải phòng