Thiết kế biệt thự, biệt thự Hưng yên, Biệt thự đẹp, Biệt thự A Quân
Thiết kế biệt thự với không gian và hình khối làm điểm nhấn cấu trúc trong và ngoài tạo nên nét đặc sắc cho công trình.
Biệt thự đẹp bao gồm 3 mặt sàn, 2 mặt sàn dùng cho sinh hoạt, tầng trên cùng dùng để phơi đồ, trồng cây xanh. Nhìn từ bên ngoài, hình khối xếp tầng tạo nét độc đáo, thu hút. Gạch ốp tường ngoài sáng màu được bao quanh bởi lớp sơn trắng càng làm nổi bật đường nét của biệt thự hiện đại 3 tầng.
Xem thêm >>>>> Biệt thự Hòa Bình đẹp
Hệ thống cửa chính, cửa sổ, lan can bằng kính là 1 điểm đặc biệt nhận biết phong cách hiện đại của căn nhà, không những thế nó đảm bảo tính sáng của căn phòng, vừa tạo cảm giác tươi mới, sảng khoái khi sử dụng hệ thống kính này.
Sảnh chính được nhấn với khoảng cấu trúc không gian đệm giữa ngoài và trong tạo cảm giác mới cho công trình. Bậc cầu thang lên sảnh được thiết kế đẹp mắt, sử dụng chất liệu đá tối màu đồng nhất với màu gạch lát sân và trong nhà tạo cảm giác không gian thêm thông thoáng rộng rãi.
Mặt bằng tầng 1: Mặt sàn tầng 1 khoảng 100m2 cho phép sự sắp xếp không gian gồm có: phòng khách ngay lối vào chiếm diện tích 20m2, bên trong chia làm 2 phòng ngủ thông nhau dành cho bố mẹ hoặc ông bà nhằm tiện nghi hóa sinh hoạt cá nhân của người lớn tuổi. Bên cạnh đó là bếp đun và phòng ăn phía sau cầu thang chiếm khoảng diện tích 10m2. Ngoài ra KTS thiết kế lối ra sau nhà, đi tới nhà vệ sinh chung và nhà kho.
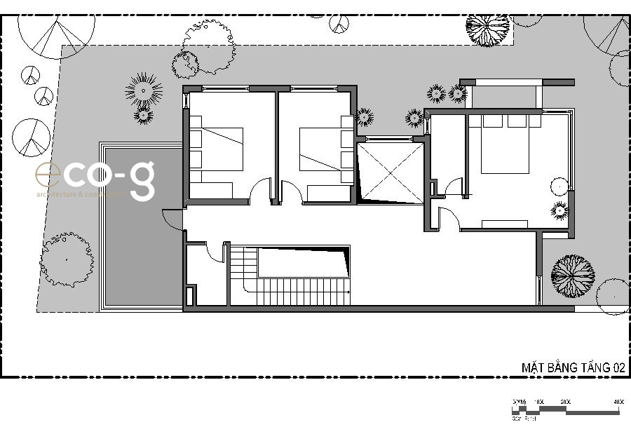
Mặt bằng tầng 2: Với diện tích sàn 80m2, KTS đã bố trí 3 phòng ngủ theo yêu cầu của chủ nhà gồm 1 phòng ngủ Master phía trước, 2 phòng ngủ nhỏ bên cạnh. Ngoài ra còn có khu sinh hoạt chung cho các thành viên ở trên lầu 2. Có thể là nơi vui chơi, giải trí hay học tập cũng đều thích hợp.
Nội thất không gian đệm của công trình tạo điểm nhấn mới, tạo những không gian đệm cho cấu trúc công trình.
Hành lang luôn luôn được phủ bởi ánh sáng tự nhiên, là bởi hệ thống của sổ bằng kính sáng, hệ thống trần rỗng được xếp theo lan. Cầu thang được thiết kế hài hòa sáng tạo với hình thức ghim tường, vật liệu bằng gỗ tone sur tone với bản lề của chính, cửa sổ là 1 điểm nhấn đẹp cho căn biệt thự hiện đại này
Nếu thiếu sót lớn khi không kể tới bức tường phía cầu thang, nó hoàn toàn nổi bật và thu hút cái nhìn ngay tức thì. Bức tường được khoác lên mình bộ cánh bằng đá chất liệu đặc biệt ấn tượng, vô cùng bắt mắt, là 1 tông màu sáng_tối xen kẽ nhau vừa tôn vẻ đẹp huyền bí của căn nhà, vừa tạo nét đẹp tinh tế độc đáo mà không ở đâu có.

Với kinh nghiệm hơn 10 năm trong lĩnh vực thiết kế và thi công công trình xây dựng, Eco Green đã xây dựng cho mình 1 đội ngũ kiến trúc sư nhiều kinh nghiệm và đội ngũ thi công lành nghề…Chúng tôi đã giúp rất nhiều khách hang có được ngôi nhà như ý muốn. Nếu bạn muốn là người tiếp theo, hãy liên hệ ngay với chúng tôi:
CÔNG TY TNHH KIẾN TRÚC ECO GREEN
Hãy liên hệ với http://kientruceco.com/ để được tư vấn miễn phí và tận tình:
ĐƠN VỊ CHUYÊN NGHIỆP THIẾT KẾ THI CÔNG NỘI NGOẠI THẤT CÔNG TRÌNH
Trụ sở: Tòa The Legend, 109 Nguyễn Tuân, Nhân Chính, Thanh Xuân, Hà Nội.
Hotline: 0973 971 896
Email: ecohome.jsc@gmail.com
Facebook: https://business.facebook.com/kientrucecogreen/
Skype: ecohome.jsc