thiết kế nhà liên kế hiện đại chị vân
thiết kế lô phố, thiết kế nhà liên kế, lô phố hiện đại
Với điều kiện cuộc sống con người ngày nay, việc xây dựng 1 ngôi nhà lý tưởng, mang màu sắc cá tính và theo sở thích của bản thân trên 1 diện tích khu đất khá nhỏ, là điều mà chủ đầu tư cần cân nhắc và suy nghĩ kỹ lưỡng. Công ty thiết kế thi công nội thất chuyên nghiệp Kiến trúc ECO-Green đã mang lại 1 gợi ý vô cùng tuyệt vời cho thiết kế nhà lô phố hiện đại. Hứa hẹn thiết kế này sẽ mang lại vẻ đẹp tinh tế, hoàn hảo, và dễ dàng có được sự tin tưởng,hài lòng tuyệt đối.

Bối cảnh tổng thể 01-Thiết kế nhà lô hiện đại chị Vân
Thiết kế của mặt tiền ngôi nhà mang lại cảm giác khác biệt, thân thiện, bắt mắt hơn rất nhiều so với các thiết kế nhà lô phố đang thịnh hành. Mặt tiền ngôi nhà là sự kết hợp của hệ thống cửa kính, giúp dễ dàng lấy thoáng và ánh sáng, ban công cũng được sử dụng chất liệu kính chịu lực, trong suốt, mang lại vẻ đẹp sang trọng, tinh khôi mà vô cùng mạnh mẽ. Kết cấu hình khối, vuông vắn,lạ mắt, nhà lô phố 4 tầng khoác lên mình màu áo thanh lịch với gam màu nâu-trắng vô cùng nhẹ nhàng, thanh khiết. Nhà lô phố hiện đại với 4 tầng, được thiết kế hệ thống phòng ốc tối ưu hóa công năng sử dụng, đem lại không gian sống tiện nghi, chuẩn hiện đại.

Bối cảnh tổng thể 01-Thiết kế nhà lô hiện đại chị Vân
Cây cối mang vẻ đẹp thiên nhiên, tạo không gian trong lành, tươi tắn là điểm nhấn đặc biệt mà ECO-Green mong muốn tạo dựng cho ngôi nhà này. Dễ thấy là không gian có rất nhiều khoảng không gian xanh ở tất cả các tầng, vừa tạo được khoảng nhìn tốt, vừa có được sức sống mạnh mẽ truyền cảm hứng, mang lại cảm giác thư thái, yêu đời hơn. Màu sắc rực rỡ, tươi mới của cây cối, hòa quyện với vẻ đẹp tinh tế mà mạnh mẽ của ngôi nhà, sự kết hợp vô cùng hài hòa này đã mang lại 1 thiết kế vô cùng hoàn mỹ, 1 không gian sống hiện đại nhưng lại gần với thiên nhiên, đáng ao ước.
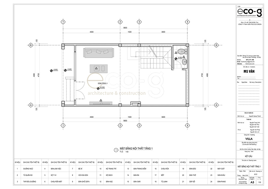
MẶT BẰNG TẦNG 1
.jpg)
Mặt bằng tầng 1 sử dụng hoàn toàn cho mục đích kinh doanh, bổ sung thêm 1 phòng vệ sinh nhỏ tại góc trong cùng.
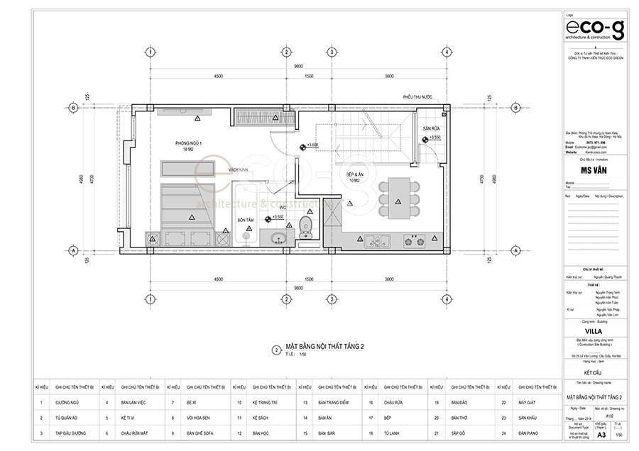
MẶT BẰNG TẦNG 2
.jpg)
Mặt bằng tầng 2 gồm: 1 phòng ngủ Master, 1 phòng bếp+ăn và khu vực sân rửa.
-Phòng ngủ master được thiết kế nội thất đầy đủ tiện nghi, có hệ thống cửa đón gió và thu sáng, mang lại không gian thư giãn vô cùng thoải mái.
-Phòng bếp+ăn và khu vực sân rửa được đặt gần nhau, mang lại sự thống nhất, tiện nghi cho sinh hoạt.
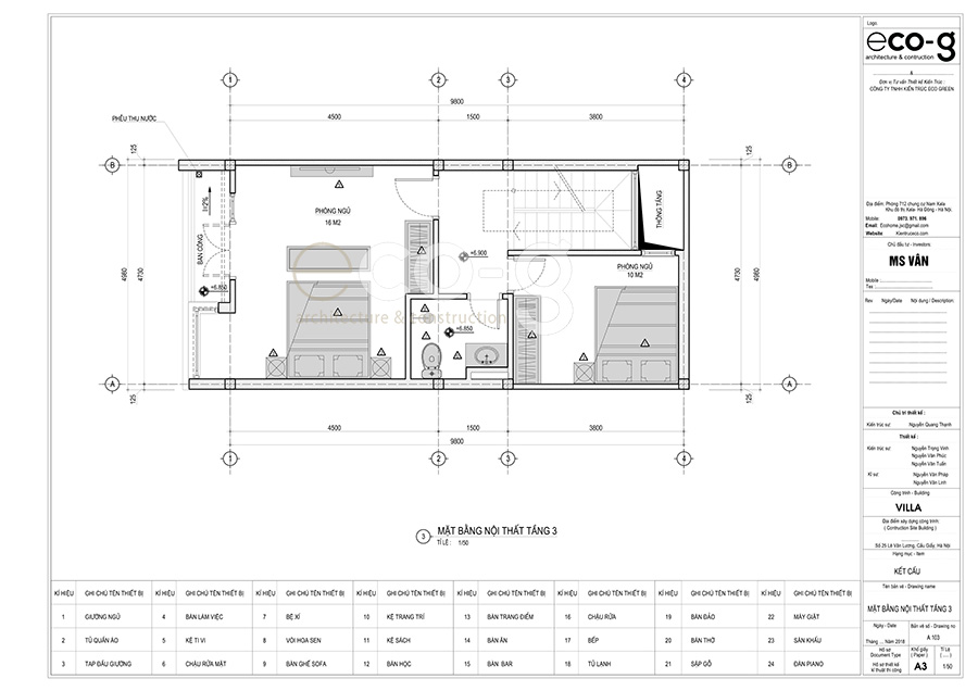
MẶT BẰNG TẦNG 3
.jpg)
Mặt bằng tầng 3 gồm: 1 phòng ngủ chính , 1 phòng ngủ phụ , 1 phòng vệ sinh chungvà hệ thống thông tầng
-Phòng ngủ chính với thiết kế nội thất hiện đại, đa năng, mang lại điều kiện tiện nghi nhất có thể. Kết hợp với ban công, giúp không gian phòng ngủ trở nên thoáng mát, lý tưởng.
-Phòng ngủ phụ được thiết kế bên trong, ở giữa là phòng vệ sinh chung, tiện lợi cho việc sử dụng.
-Hệ thống thông tầng: Giúp dễ dàng đón sáng và không khí từ bên ngoài, mang lại không gian sống thoáng đãng, tươi sáng.
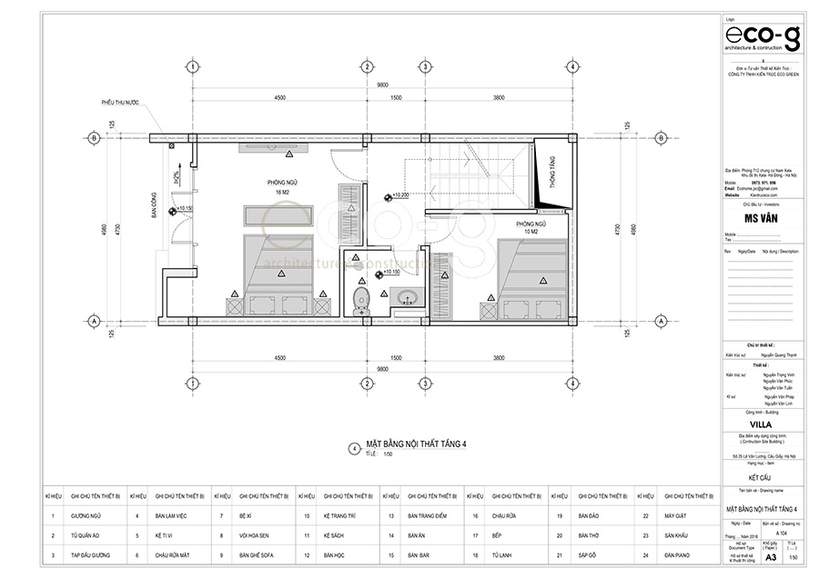
MẶT BẰNG TẦNG 4
.jpg)
Mặt bằng tầng 4 gồm: 1 phòng ngủ chính có ban công bên ngoài, 1 phòng ngủ phụ, 1 phòng vệ sinh chung và hệ thống thông tầng tương tự tầng 3.
Hãy liên hệ ngay với Kiến trúc ECO-Green để được tư vấn tận tình và miễn phí nhé!
ĐƠN VỊ CHUYÊN NGHIỆP THIẾT KẾ THI CÔNG NỘI NGOẠI THẤT CÔNG TRÌNH
Hotline: 0973971896
Email: ecohome.jsc@gmail.com
Facebook: https://business.facebook.com/kientrucecogreen/
Skype: ecohome.jsc