THIẾT KẾ KIẾN TRÚC BIỆT THỰ 3 TẦNG HIỆN ĐẠI TẠI BÌNH DƯƠNG

THIẾT KẾ KIẾN TRÚC BIỆT THỰ 3 TẦNG HIỆN ĐẠI TẠI BÌNH DƯƠNG

MỤC LỤC

I.THÔNG TIN  THIẾT KẾ KIẾN TRÚC BIỆT THỰ 3 TẦNG HIỆN ĐẠI TẠI  BÌNH DƯƠNG

1.Thông tin chủ đầu tư căn  biệt thự 3 tầng hiện đại tại  bình dương

2.Mặt bằng công năng  thiết kế kiến trúc biệt thự 3 tầng hiện đại tại  bình dương 

II.PHỐI CẢNH THIẾT KẾ KIẾN TRÚC BIỆT THỰ 3 TẦNG HIỆN ĐẠI TẠI BÌNH DƯƠNG

III.LỜI KẾT


I.THÔNG TIN  THIẾT KẾ KIẾN TRÚC BIỆT THỰ 3 TẦNG HIỆN ĐẠI TẠI  BÌNH DƯƠNG

Kiến trúc hiện đại được rất nhiều chủ đầu tư lựa chọn bởi nó mang lại sự năng động,và hơn hết là thể hiện được cá tính của chủ nhân bởi những hình khối mạnh mẽ mạch lạc.

Ở vị trí khu vực Bình Dương hiện đang có rất nhiều gia chủ có sự lựa chọn thiết kế kiến trúc hiện đại để thi công trọn gói. Do vậy, khi quyết định lựa chọn phong cách kiến trúc hiện đại để áp dụng cho ngôi biệt thự của mình A Linh chủ đầu tư đã tìm đến EcoGreen-công ty thiết kế kiến trúc uy tín tại Hà Nội và TpHCM

1.THÔNG TIN CHỦ ĐẦU TƯ THIẾT KẾ KIẾN TRÚC BIỆT THỰ 3 TẦNG HIỆN ĐẠI TẠI BÌNH DƯƠNG

Tên chủ đầu tư:

Anh Linh

Dự án thiết kế kiến trúc:

Thiết kế kiến trúc biệt thự 3 tầng hiện đại tại Bình Dương

Vị trí:

Bình Dương

Mặt bằng sàn

94m2 ( 19,75m  x 4,75m)

Thi công trọn gói

Kiến trúc ECO GREEN

Thiết kế kiến trúc

Kiến trúc ECO GREEN

Công năng tầng 1:

Sảnh chính +khu vực kinh doanh+ 1 phòng VSinh

Công năng tầng 2

1 phòng ngủ ,1 sảnh hành lang , 1 phòng vệ sinh +1 không gian bếp+ không gian tiếp khách

Công năng tầng 3

3 phòng ngủ  + 1 phòng vệ sinh + 1 phòng tắm

Công năng tầng tum

 2 sân phơi

2.MẶT BẰNG CÔNG NĂNG THIẾT KẾ KIẾN TRÚC BIỆT THỰ 3 TẦNG HIỆN ĐẠI TẠI BÌNH DƯƠNG

Mặt bằng tầng hầm-thiết kế kiến trúc-thi công trọn gói-Ecogreen-công ty thiết kế uy tín tại Hà Nội & tpHCM

Công năng tầng 1 thiết kế kiến trúc biệt thự 3 tầng hiện đại tại Bình Dương : tầng 1 là không gian mặt bằng kinh doanh và cho thuê.

Mặt bằng tầng 1-thiết kế kiến trúc-thi công trọn gói-Ecogreen-công ty thiết kế uy tín tại Hà Nội & tpHCM

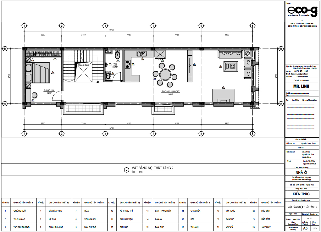
Công năng tầng 2 của thiết kế kiến trúc biệt thự 3 tầng hiện đại tại Bình Dương:  Tầng 2 là khu vực nghỉ ngơi sinh hoạt chính của các thành viên trong gia đình. Phía trước mặt tiền là phòng khách và không gian thờ cúng, vì gia chủ có mẹ già lớn tuổi muốn chăm chút ban thờ. Khu vực bếp , phòng ăn được nối liên thông liền mạch với khu vực phòng khách tạo sự thoáng đãng và được ngăn cách bởi lam chắn kệ tivi.

 Phòng về sinh chung tầng 2 nằm kế với cầu thang ở sảnh lối đi và đối diện ban công giúp khu vực hành lang luôn thoáng lưu thông không khí . Phía sau nhà là 1 phòng ngủ mẹ già ,trong phòng có đầy đủ tiện ích phục vụ thuận tiện cho người cao tuổi.

Mặt bằng tầng 2-thiết kế kiến trúc-thi công trọn gói-Ecogreen-công ty thiết kế uy tín tại Hà Nội & tpHCM

Công năng tầng 3 thiết kế kiến trúc biệt thự 3 tầng hiện đại tại Bình Dương: Là không gian nghỉ ngơi của các thành viênc còn lại với 3 phòng ngủ lớn trên tầng 3.

Mặt bằng tầng 3--thiết kế kiến trúc-thi công trọn gói-Ecogreen-công ty thiết kế uy tín tại Hà Nội & tpHCM

Tầng tum : Ở phía trước là sân bày chậu cây trang trí và sân phơi, là nơi gắn kết  các thành viên trong gia đình ở không gian ngoài trời.

Mặt bằng tầng tum-thiết kế kiến trúc-thi công trọn gói-Ecogreen-công ty thiết kế uy tín tại Hà Nội & tpHCM

MẶt bằng mái-thiết kế kiến trúc-thi công trọn gói-Ecogreen-công ty thiết kế uy tín tại Hà Nội & tpHCM

II.PHỐI CẢNH THIẾT KẾ KIẾN TRÚC BIỆT THỰ 3 TẦNG HIỆN ĐẠI TẠI BÌNH DƯƠNG

Dựa theo những yêu cầu của gia chủ a Linh ,và hiểu được rõ những mong muốn trăn trở của a, EcoGreen công ty thiết kế kiến trúc uy tín tại Hà Nội và tpHCM đã áp dụng những khối hình học vững chãi làm toát lên vể khỏe khoắn trog từng đường nét thiết kế.

Sử dụng phương án bố trí các không gian sinh hoạt chính hướng về phía mặt tiền. Kết hợp với các vật liệu mới như kính, cửa nhôm kính rộng theo xu hướng kiến trúc mở. Nhờ đó hỗ trợ tốt việc lấy sáng, điều hòa không khí cho toàn bộ ngôi nhà.

Việc thiết kế sân vườn lên trên tầng tum kết hợp với những chậu tiểu cảnh xanh ở ban công để giúp chống ồn và ngăn khói bụi, và giúp gia chủ có nơi thư giãn sau những giờ làm việc căng thẳng.

>>>>>>>>>>>>xem thêm thiết kế kiến trúc hiện đại<<<<<<<<<<<<<<<<<<<<

Phối cảnh mặt tiền thiết kế thiết kế kiến trúc biệt thự 3 tầng hiện đại tại Bình Dương-EcoGreen công ty thiết kế kiến trúc uy tín chuyên nghiệp tại Hà Nội và TpHCM

Phong cách trong thiết kế kiến trúc biệt thự 3 tầng hiện đại tại Bình Dương

Mẫu công trình thiết kế kiến trúc biệt thự 3 tầng hiện đại tại Bình Dương được thiết kế theo phong cách kiến trúc hiện đại với những đường khối mạnh mẽ khỏe khoán. Trong đó, ngôi biệt thự là những hình khối vuông vắn được sắp xếp bố cục kiến trúc đầy chất nghệ thuật.

Tận dụng tối đa vật liệu kính giúp từng không gian chức năng phòng của ngôi biệt thự 3 tầng hiện đại tại Bình Dương luôn tràn ngập ánh sáng tự nhiên.

Các khối nhà được phân biệt thông qua màu sắc của vật liệu ốp, sơn tường tạo nên một không gian ngoại thất năng động, hiện đại mà không kém phần sang trọng.

Với tông màu chủ đạo là màu ghi trung tính của những mảng ốp đá phía mặt tiền và mặt bên, thêm vào đó là màu giả gỗ của gạch thẻ ốp trang trí làm điểm nhấn nổi bật căn biệt thự kiến trúc hiện đại.

Thiết kế kiến trúc biệt thự 3 tầng hiện đại tại Bình Dương vững chãi và noỏi bật nhờ sự kết hợp giữa màu sắc nhã nhặn thanh lịch, những hình khối vuông vức táo bạo. Tất cả tạo nên một tổng thể hài hòa đẹp mắt.

Phối cảnh mặt tiền thiết kế thiết kế kiến trúc biệt thự 3 tầng hiện đại tại Bình Dương-EcoGreen công ty thiết kế kiến trúc uy tín chuyên nghiệp tại Hà Nội và TpHCM

>>>>>>>>>>>>xem thêm thiết kế kiến trúc hiện đại<<<<<<<<<<<<<<<<<<<<

>>>>>>>>>>>>xem thêm biệt thự hiên đại anh Tình Hưng Yên<<<<<<<<<<<<<<<

III.LỜI KẾT - NÊN LỰA CHỌN CÔNG TY THIẾT KẾ KIẾN TRÚC UY TÍN CHUYÊN NGHIỆP TẠI HÀ NỘI VÀ TPHCM  NÀO?

Các kiến trúc sư tại ECOGREEN có nhiều kinh nghiệm trong lĩnh vực thiết kế thi công nhà ở với kiến thức chuyên môn và gu thẩm mỹ nghệ thuật cao cam kết sẽ sáng tạo hết mình mang lại không gian sống lý tưởng nhất cho bạn và gia đình.

Nhờ có những đặc trưng vô cùng thú vị và độc đáo nêu trên mà thiết kế kiến trúc phong cách hiện đại đã dẫn đầu xu hướng phân khúc biệt thự hiện nay. Nếu bạn yêu thích mẫu thiết kế kiến trúc của Eco Green và có nhu cầu áp dụng phong cách này cho tổ ấm của mình, thì đừng ngần ngại mà hãy liên hệ ngay với Công ty thiết kế kiến trúc ECO GREEN-thi công trọn gói.

ECO GREEN là Công ty thiết kế kiến trúc uy tín,chuyên nghiệp tại Hà Nội và TpHCM với nhiều năm trên thị trường bỏi đội ngũ chúng tôi đã thi công +5000 hồ sơ kiến trúc chất lượng và đã có được sự tin tưởng của nhiều khách hàng.

CÔNG TY THIẾT KẾ KIẾN TRÚC UY TÍN, CHUYÊN NGHIỆP TẠI HÀ NỘI & TPHCM

·         Trụ sở: Tòa The Legend, 109 Nguyễn Tuân, Nhân Chính, Thanh Xuân, Hà Nội.

·         Hotline (Zalo): 0973 971 896

·         Trụ sở: Nguyễn Tuân, Nhân Chính, Thanh Xuân, Hà Nội.

·         VP2: Vĩnh Cửu, Biên Hòa, Đồng Nai.

·         VP3: Võ Văn Ngân, Thủ Đức, TP Hồ Chí Minh

·         Website: kientruceco.com / http://kientruceco.vn /

·         Email: ecohome.jsc@gmail.com

·         Facebook: https://www.facebook.com/kientrucecogreen

Hiện nay, có rất nhiều phong cách thiết kế cho nhà 2 tầng hiện đại, dưới đây là 1 vài phong cách mà các KTS Eco-Green thường được yêu cầu thiết kế nhiều nhất:

Thiết kế kiến trúc nhà 2 tầng mái thái, Thi công trọn gói nhà 2 tầng mái thái

Thiết kế kiến trúc nhà vườn 2 tầng, Thi công trọn gói nhà vườn 2 tầng

Thiết kế kiến trúc nhà 2 tầng mái bằng,Thi công trọn gói nhà 2 tầng mái bằng

Thiết kế kiến trúc nhà ống 2 tầng,Thi công trọn gói nhà ống 2 tầng

Thiết kế kiến trúc nhà 2 tầng mái lệch,Thi công trọn gói nhà 2 tầng mái lệch

Thiết kế kiến trúc nhà 2 tầng kiểu Pháp,Thi công trọn gói nhà 2 tầng kiểu Pháp

Thiết kế kiến trúc nhà 2 tầng Tân cổ điển,Thi công trọn gói nhà 2 tầng Tân cổ điển

Thiết kế kiến trúc nhà biệt thự 2 tầng Hiện Đại,Thi công trọn gói nhà biệt thự 2 tầng Hiện Đại

Thiết kế kiến trúc An Giang, Thi công trọn gói tại An Giang

Thiết kế kiến trúc An Giang, Thi công trọn gói  tại An Giang
Thiết kế kiến trúc Bà Rịa-Vũng Tàu, Thi công trọn gói tại Bà Rịa-Vũng Tàu
Thiết kế kiến trúc Bạc Liêu , Thi công trọn gói tại Bạc Liêu
Thiết kế kiến trúc Bắc Kạn, Thi công trọn gói tại Bắc Kạn

Thiết kế kiến trúc Bắc Giang ,Thi công trọn gói tại Bắc Giang
Thiết kế kiến trúc Bắc Ninh, , Thi công trọn gói  tại Bắc Ninh
Thiết kế kiến trúc Bến Tre, , Thi công trọn gói  tại Bến Tre
Thiết kế kiến trúc Bình DươngThi công trọn gói tại Bình Dương
Thiết kế kiến trúc Bình Định, Thi công trọn gói  tại Bình Định
Thiết kế kiến trúc Bình Phước, Thi công trọn gói  tại Bình Phước
Thiết kế kiến trúc Bình Thuận, Thi công trọn gói tại Bình Thuận
Thiết kế kiến trúc Cà Mau, Thi công trọn gói tại Cà Mau
Thiết kế kiến trúc Cao Bằng, Thi công trọn gói tại Cao Bằng
Thiết kế kiến trúc Cần Thơ , Thi công trọn gói tại Cần Thơ
Thiết kế kiến trúc Đà Nẵng, Thi công trọn gói tại Đà Nẵng
Thiết kế kiến trúc Đắk Lắk, Thi công trọn gói tại Đắk Lắk
Thiết kế kiến trúc Đắk Nông, Thi công trọn gói tại Đắk Nông
Thiết kế kiến trúc Điện Biên, Thi công trọn gói tại Điện Biên
Thiết kế kiến trúc Đồng Nai, Thi công trọn gói tại Đồng Nai
Thiết kế kiến trúc Đồng Tháp, Thi công trọn gói tại Đồng Tháp
Thiết kế kiến trúc Gia Lai, Thi công trọn gói tại Gia Lai
Thiết kế kiến trúc Hà Giang, Thi công trọn gói tại Hà Giang
Thiết kế kiến trúc Hà Nam, Thi công trọn gói tại Hà Nam
Thiết kế kiến trúc Hà Nội , Thi công trọn gói tại Hà Nội
Thiết kế kiến trúc Hà Tây, Thi công trọn gói tại Hà Tây
Thiết kế kiến trúc Hà Tĩnh, Thi công trọn gói tại Hà Tĩnh
Thiết kế kiến trúc Hải DươngThi công trọn gói tại Hải Dương
Thiết kế kiến trúc Hải Phòng , Thi công trọn gói tại Hải Phòng
Thiết kế kiến trúc Hòa BìnhThi công trọn gói tại Hòa Bình
Thiết kế kiến trúc TPHồ Chí Minh, Thi công trọn gói  tại Hồ Chí Minh
Thiết kế kiến trúc Hậu Giang, Thi công trọn gói tại Hậu Giang
Thiết kế kiến trúc Hưng YênThi công trọn gói tại Hưng Yên
Thiết kế kiến trúc Khánh HòaThi công trọn gói Khánh Hòa
Thiết kế kiến trúc Kiên Giang, Thi công trọn gói tại Kiên Giang
Thiết kế kiến trúc Kon Tum, Thi công trọn gói tại Kon Tum
Thiết kế kiến trúc Lai ChâuThi công trọn gói tại Lai Châu
Thiết kế kiến trúc Lào Cai, Thi công trọn gói tại Lào Cai
Thiết kế kiến trúc Lạng Sơn, Thi công trọn gói tại Lạng Sơn
Thiết kế kiến trúc Lâm Đồng, Thi công trọn gói tại Lâm Đồng
Thiết kế kiến trúc Long An, Thi công trọn gói tại Long An
Thiết kế kiến trúc Nam Định, Thi công trọn gói tại Nam Định
Thiết kế kiến trúc Nghệ An, Thi công trọn gói tại Nghệ An
Thiết kế kiến trúc Ninh Bình, Thi công trọn gói tại Ninh Bình
Thiết kế kiến trúc Ninh Thuận, Thi công trọn gói tại Ninh Thuận
Thiết kế kiến trúc Phú ThọThi công trọn gói tại Phú Thọ
Thiết kế kiến trúc Phú Yên, Thi công trọn gói tại Phú Yên
Thiết kế kiến trúc Quảng Bình, Thi công trọn gói tại Quảng Bình
Thiết kế kiến trúc Quảng NamThi công trọn gói tại Quảng Nam
Thiết kế kiến trúc Quảng Ngãi, Thi công trọn gói tại Quảng Ngãi
Thiết kế kiến trúc Quảng NinhThi công trọn gói tại Quảng Ninh
Thiết kế kiến trúc Quảng Trị, Thi công trọn gói tại Quảng Trị
Thiết kế kiến trúc Sóc Trăng, Thi công trọn gói tại Sóc Trăng
Thiết kế kiến trúc Sơn La, Thi công trọn gói tại Sơn La
Thiết kế kiến trúc Tây Ninh, Thi công trọn gói tại Tây Ninh
Thiết kế kiến trúc Thái Bình, Thi công trọn gói tại Thái Bình
Thiết kế kiến trúc Thái NguyênThi công trọn gói tại Thái Nguyên
Thiết kế kiến trúc Thanh Hóa, Thi công trọn gói  tại Thanh Hóa
Thiết kế kiến trúc Thừa Thiên – Huế, Thi công trọn gói tại Thừa Thiên – Huế
Thiết kế kiến trúc Tiền Giang, Thi công trọn gói tại Tiền Giang
Thiết kế kiến trúc Trà Vinh, Thi công trọn gói tại Trà Vinh
Thiết kế kiến trúc Tuyên Quang, Thi công trọn gói tại Tuyên Quang
Thiết kế kiến trúc Vĩnh Long, Thi công trọn gói  tại Vĩnh Long
Thiết kế kiến trúc Vĩnh Phúc, Thi công trọn gói tại Vĩnh Phúc
Thiết kế kiến trúc Yên Bái, Thi công trọn gói tại Yên Bái

Bình luận
Joshua vs Usyk Live Joshua vs Usyk Live Stream Joshua vs Usyk Live Stream Reddit Joshua vs Usyk Live Reddit ufc live stream free online ufc live stream