Thiết kế biệt thự song lập BT 02 Mộc Lan Vinhomes Mễ Trì

Thiết kế biệt thự song lập BT 02 Mộc Lan Vinhomes Mễ Trì


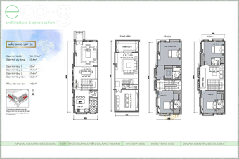
Thiết kế biệt thự song lập BT 02 Mộc Lan Vinhomes Mễ Trì đẹp hiện đại tinh tế

Tọa lạc tại vị trí đẹp nhất Hà Nội, giá thành đắt đỏ bậc nhất, biệt thự song lập BT 02 Mộc Lan Vinhomes Mễ Trì xứng đáng với mẫu thiết kế biệt thự đẹp nhất, nội thất sang trọng nhất. Diện tích xây dựng đúng chỉ tiêu 85m2, Kiến Trúc Eco Green cho ra mắt sản phẩm biệt thự song lập BT Mộc Lan hiện đại, sang trọng, đẳng cấp phù hợp với vị thế của nó.


Thiết kế biệt thự song lập BT 02 Mộc Lan Vinhomes Mễ Trì

Thiết kế biệt thự song lập BT 02 Mộc Lan Vinhomes Mễ Trì với nhiều vẻ đẹp từ tân cổ điển đến hiện đại cộng hưởng với nhau tạo nên công trình đẳng cấp nhất

Sang trọng là điều chúng tôi hướng đến cho thiết kế nội thất biệt thự. Không quá khó để biết rằng thết kế tân cổ điển luôn làm hài lòng gia chủ khó tính nhất, với thiết kế chỉn chu từ hình thức tới chất lượng thiết kế nội thất tân cổ điển mang vẻ đẹp thiên cổ, không gian sang trọng bởi ánh vàng, đẳng cấp bới thiết kế tinh tế, chất liệu cực phẩm. 

Thiết kế biệt thự song lập BT 02 Mộc Lan Vinhomes Mễ Trì

Thiết kế biệt thự song lập BT 02 Mộc Lan Vinhomes Mễ Trì xa hoa trắng lệ

Tông màu vành ấm là chủ đạo nhấn nhá màu xanh da trời của sofa hay rèm cửa càng làm tôn thêm sự quý phái của căn phòng. Phù hợp với thiết kế tân cổ điển, đèn chùm được lựa chọn mẫu tinh tế thiết kế ấn tượng thu hút người xem ngay từ cái nhìn đầu tiên

Thiết kế biệt thự song lập BT 02 Mộc Lan Vinhomes Mễ Trì

Thiết kế biệt thự song lập BT 02 Mộc Lan Vinhomes Mễ Trì mỹ miều từ cái tên gọi cho thấy vẻ đẹp tuyệt sắc, tinh khôi mà kiều diễm

Phòng ngủ đẹp mắt sử dụng tông màu trầm, với bộ giường ngủ được thiết kế phong cách tân cổ điển, nhưng mang lại cảm giác hoàn toàn mới mẻ, do được KTS ECO GREEN thiết kế 

Thiết kế biệt thự song lập BT 02 Mộc Lan Vinhomes Mễ Trì

Thiết kế biệt thự song lập BT 02 Mộc Lan Vinhomes Mễ Trì bởi kiến trúc sư dàiy dạn kinh nghiệm, thi công bởi kỹ sư lành nghề, bàn tay gia công khéo léo tạo nên những sản phẩm chất lượng, tuyệt hảo nhất

Biệt thự song lập BT 02 Mộc Lan Vinhomes Mễ TRì không đơn giản chỉ là biệt thự đắt đỏ, nó sở hữu cả ngoại hình và nội thất đẳng cấp bậc nhất Hà Nội. Dưới bàn tay của Eco Green chúng tôi, BT nâng tầm quốc tế với thiết kế nội thất tráng lệ, đẹp lòng người

Bình luận
Joshua vs Usyk Live Joshua vs Usyk Live Stream Joshua vs Usyk Live Stream Reddit Joshua vs Usyk Live Reddit ufc live stream free online ufc live stream